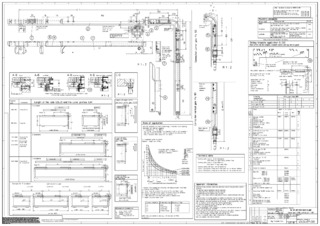
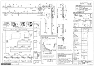
Scissors OL 320

Standard leaf bracket * with mounting plate, short

Variants & Accessories

Contact

GEZE Central 4006909003 Hotline for architects +86-22-8689-2532