Set caps for glass clamping plate 30 mm * End cap for glass clamping plate 30, set comprising 2 pieces
- End cap for glass clamping plate 30
Application Areas
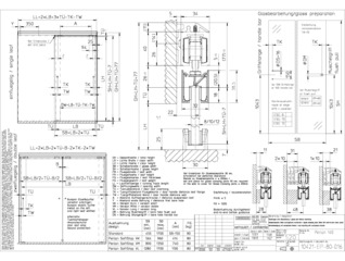
- Glass clamping plate 30 mm for leaf weights up to 80 kg
Technical data
| Set caps for glass clamping plate 30 mm | |
| Pane thickness | 8 - 12 mm |
Downloads
LABELLING OBLIGATION: © GEZE GmbH
Variants & Accessories
* Notice about the products displayed
The products mentioned above may vary in form, type, characteristics and function (design, dimensions, availability, approvals, standards etc.) depending on the country. For questions please contact your GEZE contact person or send us an E-Mail .