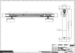
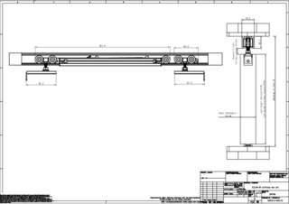
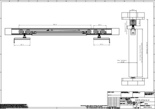
Slilan 80 SoftstopDuo Set * Sliding door fitting system with soft closing for timber leaves up to 80 kg leaf weight
- Suitable for leaf weights up to 80 kg
- Damped on both sides or one side
Application Areas
- For timber sliding doors
- For single or multi-leaf sliding doors
- Living, office, and conference areas as well as hotels
- Ceiling installation
Technical data
| Slilan 80 SoftstopDuo Set | |
| Leaf weight (max.) | 80 kg |
| draw-in damping | two-sided |
Downloads
Variants & Accessories
* Notice about the products displayed
The products mentioned above may vary in form, type, characteristics and function (design, dimensions, availability, approvals, standards etc.) depending on the country. For questions please contact your GEZE contact person or send us an E-Mail .