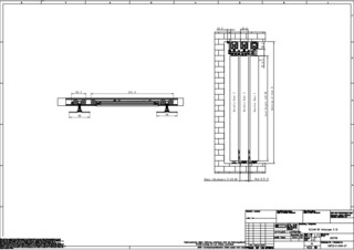
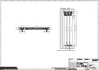
Slilan 80 telescope 3 1S * Telescopic sliding door fitting system with soft closing for timber doors up to 80 kg leaf weight
- Suitable for leaf weights up to 80 kg
- Telescopic function for three-leaf interior doors
- Damped on both sides or one side
Application Areas
- For timber sliding doors
- For three-leaf, telescopic sliding doors
- Living, office, and conference areas as well as hotels
- Space-saving sliding door hardware system for large passage widths
- Ceiling installation
Technical data
| Slilan 80 telescope 3 1S | |
| Leaf weight (max.) | 80 kg |
| Telescope | Yes |
Downloads
Variants & Accessories
* Notice about the products displayed
The products mentioned above may vary in form, type, characteristics and function (design, dimensions, availability, approvals, standards etc.) depending on the country. For questions please contact your GEZE contact person or send us an E-Mail .