Hygienic Doors
GEZE MCRdrive * 具有透气性认证的模块化气密性移门系统
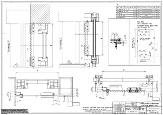
- 该方案由 GEZE MCRdrive 门机和盖泽 MCRdrive 门扇系统组成
- 得益于模块化的构造,可以最大限度地满足客户的个性化需求:门机和/或门扇系统,包括型材和密封系统
- 符合 EN 1026 / EN 12207 最高透气性 D 级标准和 EN 4109 37dB 的隔音要求
- 纤巧的型材系统,用于实现门窗极窄边框和超大玻璃表面
- 用于玻璃、HPL 防火板或不锈钢门扇的通用型材系统
- 配备密封角的圆周密封系统降低了关闭的移门系统的空气渗透性
- 通过下沉和挤压门框实现气密性
- 为医院运营优化了开启宽度(护士通行、日常清洁、病床通行)
- 由于产品设计简洁,产品订购和安装处理不复杂
- 可通过配置工具进行配置
- 因为有装配公差,并且可现场对门扇进行微调,装配简便快捷
- 可联网并且可以借助开放式标准 (BACnet) 集成到楼宇自动化系统中
- 可以提供符合 DIN 6834-1 标准的带铅芯的玻璃和辐射保护
配置变体
- 单扇平移门系统
- 用于有气密性要求的区域的室内门
- 开启宽度为800mm至2500mm
- 医疗领域的手术室、隔离室和重症监护室
- 研究机构实验室
- 制药和食品行业
参考对象安装情况和视频
产品说明书
| GEZE MCRdrive | |
| 用于 1 扇门系统 | 是 |
| 单扇门重(最大) | 200 kg |
| 1 扇门的打开宽度 | 800 mm - 2500 mm |
| 净通道高度 | 2500 mm |
| 使用温度: | -15 - 50 °C |
| 防护等级 | IP20 |
| 符合标准 | EN 16005, DIN EN ISO 13849:性能等级 D, DIN EN 12207:2016 |
下载
GEZE MCRdrive
LABELLING OBLIGATION:
© GEZE GmbH
GEZE MCRdrive
LABELLING OBLIGATION:
© GEZE GmbH
GEZE MCRdrive
LABELLING OBLIGATION:
© GEZE GmbH
GEZE MCRdrive
LABELLING OBLIGATION:
© GEZE GmbH
GEZE MCRdrive
LABELLING OBLIGATION:
© GEZE GmbH
GEZE MCRdrive
LABELLING OBLIGATION:
© GEZE GmbH
GEZE MCRdrive
LABELLING OBLIGATION:
© GEZE GmbH
GEZE MCRdrive
LABELLING OBLIGATION:
© GEZE GmbH
GEZE MCRdrive
LABELLING OBLIGATION:
© GEZE GmbH
GEZE MCRdrive
LABELLING OBLIGATION:
© GEZE GmbH
GEZE MCRdrive
LABELLING OBLIGATION:
© GEZE GmbH
GEZE MCRdrive
LABELLING OBLIGATION:
© GEZE GmbH
GEZE MCRdrive
LABELLING OBLIGATION:
© GEZE GmbH
GEZE MCRdrive
LABELLING OBLIGATION:
© GEZE GmbH
GEZE MCRdrive
LABELLING OBLIGATION:
© GEZE GmbH
型号和附件
* 所展示物品的提示
上述产品的形式、类型、特性和功能(设计、尺寸、可用性、批准、标准等)可能因国家而异。如有疑问,请联系您的 GEZE 联系人或给我们发送 E-Mail .