单扇门用滑尺式闭门器
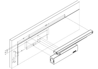
TS 5000 L ECline * 带导轨的明装式闭门器,用于合页异侧无障碍单扇门,门扇最大宽度为 1250 mm,配备开门辅助装置
- EN 3-5 级可变调节闭合力
- 符合 DIN 18040标准下高至EN5 的无障碍通道(门扇宽度:1250mm)
- 可用于左右开门,无需转换
- 开门辅助功能:轻松开启、舒适通行
- 开门辅助功能可依据风力或压差自动关闭
- 配备液压闭锁装置,在临到达全闭位置前可加速闭门
- 闭合速度可单独调节
- 内置缓冲装置,可减慢门扇被强行推开时的速度
- 可视化闭合力显示,便于控制设置
- 所有功能均可从正面进行调节
配置变体
- 防火和防烟门
- 左右两边的双向开启门
- 单向门,最大门扇宽度1250mm
- 门扇安装在合页异侧,门框安装在合页侧
- 符合DIN 18040 EN 5无障碍建筑标准的通用型通道
参考对象安装情况和视频
产品说明书
| TS 5000 L ECline | |
| 闭门力级符合 EN 1154 标准 | EN 3 - 5 |
| 符合 DIN 18040 标准的无障碍门,门扇宽度(最大)以毫米为单位 | 1250 mm |
| 门扇宽度(最大) | 1250 mm |
| 安装方式 | 合页同侧门框安装, 合页异侧门扇安装 |
| 开启角度(最大) | 180 ° |
| 防火门适用性 | 是 |
| 闭门力级可调 | 是,无级可调 |
| 关门速度可调 | 是 |
| 闭锁动作可调 | 是,通过阀 |
| 内置开门缓冲功能 | 是,液压可调式 |
| 内置开门辅助 | 是 |
| 闭门力级调节位置 | 正面 |
| 闭门力级可视条 | 是 |
| 停门单元 | 可选 |
下载
闭门器 TS 5000 ECline
LABELLING OBLIGATION:
© GEZE GmbH
型号和附件
* 所展示物品的提示
上述产品的形式、类型、特性和功能(设计、尺寸、可用性、批准、标准等)可能因国家而异。如有疑问,请联系您的 GEZE 联系人或给我们发送 E-Mail .