TS 1000 C
TS 1000 C闭门器主体 * 折臂式闭门器 EN 2/3 的主体
- 两种可变闭合力设置,可通过旋转折臂的承重块直接进行选择
- 通过侧面的调节阀可以调节闭门速度
- 通过侧面的调节阀可以调节锁闭操作
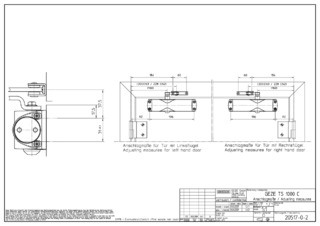
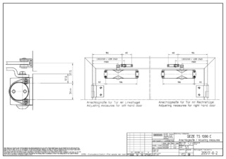
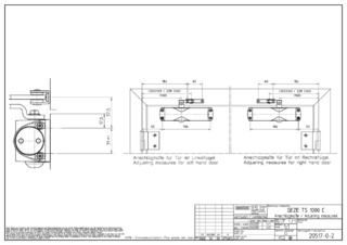
- 闭门器可用于左开门或右开门
配置变体
- 用于室内的单向左、右开门
- 最大门扇宽度 950mm的单向门
- 合页同侧门扇安装及合页异侧门框安装
产品说明书
| TS 1000 C闭门器主体 | |
| 闭门力级符合 EN 1154 标准 | EN 2/3 |
| 门扇宽度(最大) | 950 mm |
| 安装方式 | 合页同侧门扇安装, 合页异侧门框安装 |
| 开启角度(最大) | 180 ° |
| 不区分DIN 左、右开门 | 是 |
| 符合标准 | EN 1154:1996/A1:2002/AC:2006 |
| 防火门适用性 | 是 |
| 长度 | 215 mm |
| 宽度 | 44 mm |
| 高度 | 52 mm |
| 闭门力级可调 | 是,通过安装手段 |
| 关门速度可调 | 是 |
| 闭锁动作可调 | 是,通过阀 |
| 内置开门缓冲功能 | 否 |
| 闭门力级调节位置 | 安装位置 |
* 所展示物品的提示
上述产品的形式、类型、特性和功能(设计、尺寸、可用性、批准、标准等)可能因国家而异。如有疑问,请联系您的 GEZE 联系人或给我们发送 E-Mail .