Slimdrive EMD-F 1-leaf swing door drive system

MPS-D mechanical programme switch * Mechanical programme switch for setting the mode of operation for automatic doors

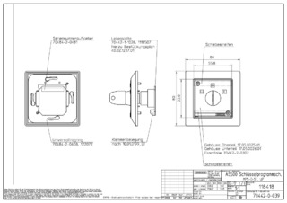
Mechanical programme switch MPS-D Programme switch for selecting the operating status of automatic doors
  • Available with rotary button or key
  • Three adjustable modes of operation
Contact us

Application Areas

  • For changing the modes of operation of GEZE automatic door systems

Technical data

MPS-D mechanical programme switch
Dimensions 80 x 80 x 12 mm
Current consumption 50 mA
IP rating IP40
Type of installation Flush-mounted installation
Connector cable length 100 m
Service temperature -15 - 50 °C

Downloads

Variants & Accessories

Contact

GEZE Central 4006909003 Hotline for architects +86-22-8689-2532